游艇会

湘潭市精至细胞库
宣布时间:2021.05.06
浏览次数:1531 次

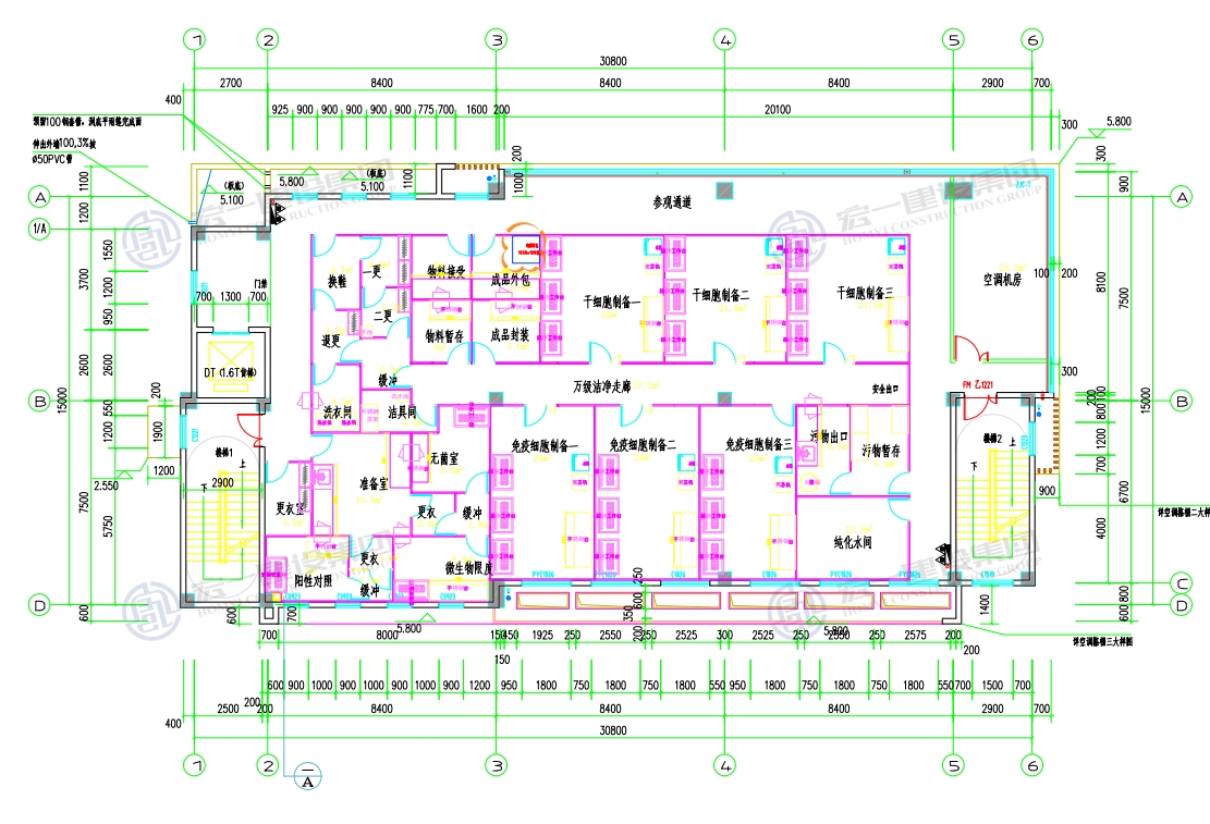
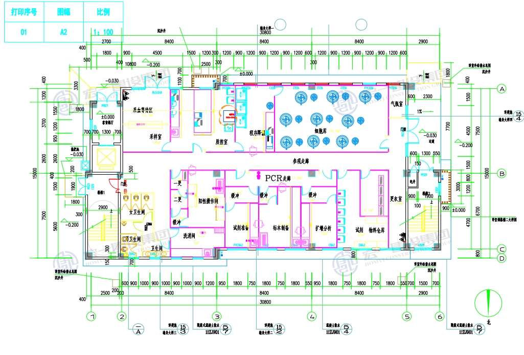
湘潭精至细胞库建设项目:湘潭精至细胞库是湖南精至生物科技有限公司自力建设的一个细胞制备实验室,主要是针对干细胞,免疫细胞的制备作育,存储,检测。实验室分2层共800平方,其中有2间清洁品级抵达千级的免疫细胞制备间。我司认真此项目的全套设计以及施工的一站式效劳。


项目面积:2600㎡

所在:湘潭

签约时间:2021年


游艇会yth·(中国)最新官方网站

游艇会yth·(中国)最新官方网站

游艇会yth·(中国)最新官方网站

Copyright ? 2022 游艇会有限公司      粤ICP备2021038609号
【网站地图】【sitemap】