游艇会

山西白求恩医院
宣布时间:2020.06.05
浏览次数:3616 次

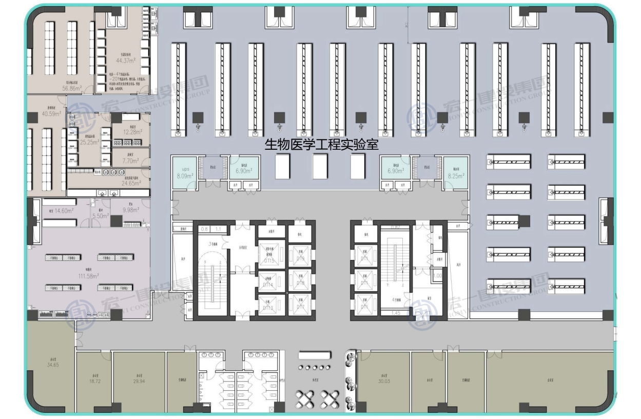
山西白求恩医院是山西省委省政府投资建设的规模最大、功效最全、标准最高的现代化综合性医疗卫生气构,具有医疗、教学、科研、防保、抢救、康复六位一体的功效和区域医疗中心的作用!2020年6月,游艇会集团与山西白求恩医药、山西医学科学院(华中大同济山西医院)签署科研教学楼建设项目条约,该项目效劳内容包括18层实验室(约20000平方米)妄想设计,该实验室主要用于器官移植研究、呼吸与危重症医学研究、生物医学工程等领域。


项目面积:20000㎡

所在:太原

签约时间:2020年


游艇会yth·(中国)最新官方网站

游艇会yth·(中国)最新官方网站

游艇会yth·(中国)最新官方网站游艇会yth·(中国)最新官方网站游艇会yth·(中国)最新官方网站游艇会yth·(中国)最新官方网站

Copyright ? 2022 游艇会有限公司      粤ICP备2021038609号
【网站地图】【sitemap】