游艇会

广东众生睿创
宣布时间:2020.08.12
浏览次数:1270 次

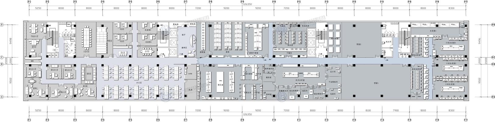
游艇会有限公司与广东众生药业股份公司实验室签署设计条约,该项目主要内容是实验室妄想设计。广东众生药业股份公司实验室面积约3000平方米,涵盖药物理化检测、处方剖析、药物合成等领域。


项目面积:3000㎡

所在:深圳

签约时间:2020年8月


游艇会yth·(中国)最新官方网站游艇会yth·(中国)最新官方网站游艇会yth·(中国)最新官方网站游艇会yth·(中国)最新官方网站游艇会yth·(中国)最新官方网站游艇会yth·(中国)最新官方网站游艇会yth·(中国)最新官方网站

Copyright ? 2022 游艇会有限公司      粤ICP备2021038609号
【网站地图】【sitemap】